



















外壁と一体となった「Garden Wall」が隣地や道路からの視線を遮り、プライバシーを確保。プライベートな屋外テラスとリビング、寝室、浴室が大開口の窓と一体となることで、庭と空を独占できる開放的な住まいを実現します。
「Garden Wall」の仕上材は外壁材と同じ下記の3種類から選択できるほか、ツタによる壁面緑化も可能です。


1
「21世紀の庭付き住宅」のプロトタイプを目指した、現代建築の美しさを体感できるデザイン
2
ZEH基準を上回るアメリカ、ドイツ、スウェーデンなどの住宅先進国と同等以上の断熱性能を実現(UA値0.34以下、HEAT20 G2グレード)
3
樹脂製サッシ×トリプルガラス、全館空調システム「コンフォート24」、北米発の発砲ウレタン断熱、TESLA社「Powerwall」などの最先端技術を採用

もう周囲の視線を気にして一日中、カーテンで窓を閉め切る必要はありません。
「Garden Wall House」では、外部からのプライバシーを確保した上で、リビングやダイニング、寝室、浴室などから「庭」を眺め、光と風、空と緑と共に過ごす日常を実現します。
屋外用の家具でリラックスしながら音楽や読書を楽しんだり、友人を招いてBBQや食事、家庭菜園やガーデニング、テント式の薪サウナやジャグジー、愛犬や愛猫との遊び場、愛車を眺められるカースペースなど、アイデア次第で「Garden Wall House」での暮らしの可能性は無限に広がります。
また「庭」の価値は、屋外で過ごす時間だけではありません。むしろ年間を通して快適な温度に保たれた屋内から「庭」を眺めながら過ごす時間にこそ、「庭」のある暮らしの豊かさを感じられると考えています。

寒さが厳しい北米でトップシェアを誇り、経年劣化しにくく、隙間なく施工可能な発砲ウレタン吹付け断熱、北海道などの寒冷地でもエアコン1台で冷暖房可能な全館空調システム、樹脂製サッシ&トリプルガラスなど、最先端の設備や建材を採用することで、これからの住宅に求められる世界水準の「デザイン×性能」を実現します。

クレバリーホーム独自のSPG構造やリビングの大開口を支える適切な構造計画により、最高等級である耐震等級3級*の耐震性能を確保。さらに「Garden Wall」も建物本体と同様に30年の長期保証の対象です。
*等級1の1.5倍の耐震性能。震度6強~7の地震でも軽い補修程度で住み続けられるレベルと位置付けられており、消防署や警察署といった災害復興の拠点となる防災施設に匹敵する耐震性能です。

初期費用0円、10年間のリース後は無償譲渡される太陽光発電システム「ゼロスタソーラー」や米TESLA社の大容量蓄電池「パワーウォール」を採用。
ZEH基準を上回る断熱性能に加えて、大容量のエコキュート給湯器、EV対応の充電設備などを組み合わせることで、石油エネルギーや電力会社に依存せず、暮らしに必要な電力を創り、貯め、存分に使う。これからの時代に相応しい「オール電化住宅」です。

全国で年間3000棟を超える施工実績があり、大手ハウスメーカーとしてあらゆる面で高いレベルの品質や保証、アフターサービスが求められる「クレバリーホーム」が設計施工を担当。さらに「Garden Wall」も含めた30年の長期保証により、安心して家づくりをお任せいただける施工体制をご提供します。
インナーガレージ
カーポート
屋外プール
露天風呂
EV用電源
温水式床暖房
バイオエタノール暖炉
自動消火装置
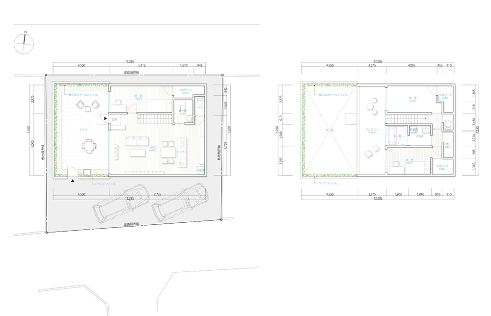
1階床面積 60m² 2階床面積 60m²
延床面積 120m²(約36坪) 4LDK
構法:木造在来工法
本体価格 28,000,000円(税込)から
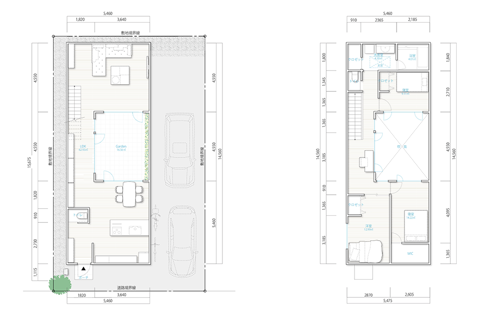
1階床面積 62m² 2階床面積 62m²
延床面積 124m²(約37坪) 3LDK
構法:木造在来工法
本体価格 28,000,000円(税込)から
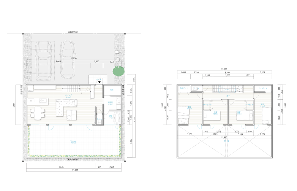
1階床面積 56m² 2階床面積 39m²
延床面積 96m²(約29坪) 3LDK
構法:木造在来工法
本体価格 23,000,000円(税込)から
| 外壁材 |
外壁材(下記から選択)
壁面緑化用植物
敷材 |
|---|---|
| 基礎 |
ベタ基礎(鉄筋コンクリート) |
| 構造材 |
耐力壁:耐力面材、筋交など |
| 断熱材 (天井裏、壁、床下) |
発砲ウレタン吹き付け断熱(カナダ・アイシネン社製) |
| 外部建具・ 玄関ドア |
窓サッシ:YKK APW430シリーズ
玄関ドア:LIXIL ジエスタK2 |
| 内部建具・床材 |
屋内建具:LIXILラフィス
床:朝日ウッドテック MRXシリーズ |
| 屋根 |
ガルバリウム鋼板 |
| 庇、 宅配ボックス、 屋外照明 |
玄関庇:アルフィン AD2 |
| キッチン |
LIXIL リシェルSI(ワークトップ:セラミック) |
| 洗面化粧台 |
Panasonic シーライン |
| ユニットバス |
TOTO シンラ 1616サイズ |
| トイレ |
TOTO ネオレスト(タンクレス) |
| 給水 |
ウルトラファインバブル(クレバリーホーム) |
| 空調換気設備 |
全館空調システム コンフォート24 |
| 給湯システム (オール電化) |
エコキュート(460リットル) |
| 蓄電池 |
TESLA製 Powerwall(13.5kWh) |
| 太陽光パネル |
下記メーカーから選択
クレバリーホーム独自商品「ゼロスタソーラー」
Qセルズ製(ドイツ製)
マキシオン製(米国製) |
| 自動消火設備 |
ケスジャン(天井埋込型) |
*上記仕様は提案例になります。
*上記仕様以外のキッチン、床材などについては個別にご相談ください。
全国どこでも対応いただけるのでしょうか?
対応可能です。オンラインでのご相談やプラン作成、見積もりは無料ですので、お気軽にご相談ください。
「Garden Wall House」と従来の戸建住宅との違いは?
最大の特徴は高さ5mを超える「Garden Wall」により、密集した住宅街で求められるプライバシーを確保した「庭」を設けることで、外部からの視線を一切気にすることなく、「庭」のある暮らしを楽しめることです。
その一方で、日本の住宅街の敷地条件、土地面積で広大な「庭」を求めることは現実的ではありません。
「Garden Wall House」は、水平ではなく垂直に、樹木ではなくツタで緑化していくことで、新しい「庭付き住宅」のプロトタイプを目指しています。
「Garden Wall」をつけると外構費用がかさみ、総工費が高くなりませんか?
「Garden Wall」は、建物の構造や外壁の一部として本体と同時に施工するため、外構工事として新たに基礎工事や躯体工事を行う必要がなく、必要最小限のコストで「プライベートな庭」を実現することができます。
現在賃貸に住んでおり、初めての住宅購入で資金面が心配です。資金計画や住宅ローンについても相談することは可能でしょうか?
もちろん可能です。また専門家への資金計画や住宅ローンの事前相談~審査までスマホ上で行える「いえーるダンドリ」を導入しており、無料でご利用いただけます。
敷地が決まっていませんが、土地探しからをお願いすることは可能ですか?
もちろん可能です。全国の不動産会社と提携し、未公開物件も含めた土地の紹介業務も行っております。「Garden Wall House」に最適な土地探しからお手伝いさせて頂きます。
必要な自己資金、大体の建築費はどの位でしょうか?
施工エリアや敷地の法規制、仕様等によって変動するため、まずは無料のプラン作成と見積もりサービスをご利用ください。
また自己資金が少ない場合、諸費用込みのローンも可能な金融期間をご紹介可能ですので、ご予算や資金計画についてもお気軽にご相談ください。
施工会社は選べないのでしょうか?
選択可能です。弊社では「Garden Wall House」のプロデュースを行う立場として技術力や実績等から信頼できる施工会社の選定とデザイン監修を行っています。
現在、クレバリーホーム湘南店のほか、全国のクレバリーホーム加盟店、及び各地域で豊富な施工実績を持つ工務店との提携を進めています。施工エリアやご予算、仕様に最適な提携工務店を数社選定し、ご紹介させていただきます。
| 事務所名 | u.l.a.design / ユーエルエーデザイン |
|---|---|
| 住 所 | 東京都目黒区目黒2-11-3 |
| 代表者 | 佐々木 祐治 |
| 設 立 | 2020年12月 |
| 電話番号 | 03-4570-1743 |
| 主な 事業内容 |
規格型住宅「Garden Wall House」の企画、デザイン監修、販売 |
本サイト掲載の情報・画像など、全てのコンテンツの無断複写・転載を禁じます。
© u.l.a.design ALL RIGHTS RESERVED.